Toba architecten Toba architecten Toba architectenToba architecten
whatsapp
  • kennisbank
  • PIM
  • BIM
  • klantenlogin
  • projecten
  • Thema’s
  • Over ons
    • Team
    • Missie, visie en werkwijze
    • Vacatures en stages
  • Werken bij
  • blog & nieuws
  • Contact
  • Kennisbank
  • PIM
  • BIM
  • klantenlogin
Moderne uitbreiding van boerderij
Ruime entree die inspeelt op het dagelijks gebruik van de bewoners
uitbreiding van boerderij in Elspeet
  • opdrachtgever particulier
  • architect Martijn Tromp

Voor deze boerderij heeft Toba een moderne uitbreiding ontworpen die inspeelt op het dagelijks gebruik van de bewoners. De nieuwe entree is ruimer opgezet en vormt een lichte overgang tussen erf en woning. Vanuit de keuken ontstaat in het ontwerp zicht op de paardenstallen, waardoor de uitbreiding sterk verbonden is met het buitenleven. De aanbouw heeft een eigentijdse uitstraling door het gebruik van aluminium felsbanen en vormt, samen met het wit schilderen van de woning, een zorgvuldig en samenhangend geheel met de bestaande boerderij.

impressie
#1#2
#1#2#3#4#5#6#7#8
before & after
  1. impressie ontwerp uitbreiding boerderij Elspeet
  2. Boerderij Elspeet
  1. impressie ontwerp uitbreiding boerderij Elspeet
  2. Boerderij Elspeet
isometrie
  • isometrie uitbreiding boerderij Elspeet
  • isometrie uitbreiding boerderij Elspeet
  • isometrie uitbreiding boerderij Elspeet
aanzicht
PreviousNext
PlayPause
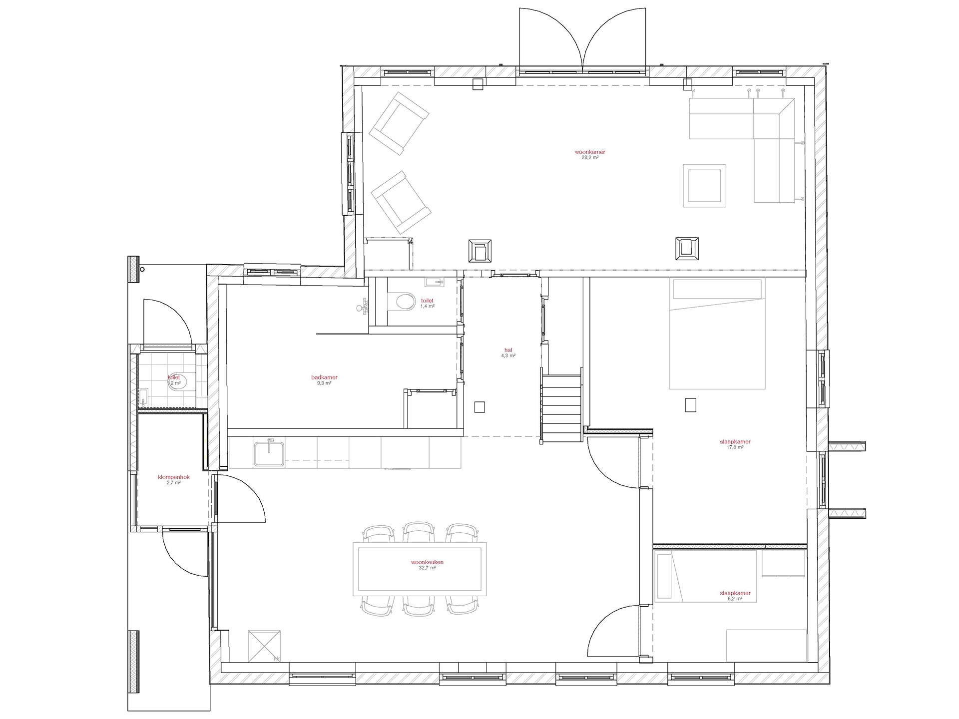
plattegrond
Plattegrond uitbreiding boerderij Elspeet
vorige volgende

Vragen over dit project?

Thijs van Vessem kan je er alles over vertellen!

    Thijs van Vessem

    Gerelateerde projecten

    Bosvilla Zeist
    nieuwbouw woningbouw
    Bosvilla Zeist
    Woonwijk Hof van Trijntje
    uitgelicht woningbouw
    Woonwijk Hof van Trijntje
    Moderne levensloopbestendige villa
    duurzaam nieuwbouw
    Moderne levensloopbestendige villa

    Toba is een architectenbureau voor nieuwbouw, transformatie en renovatie.

    Onze ontwerpen zijn gegrond op kennis en ervaring en worden gedreven door nieuwsgierigheid en liefde voor het vak. Wij durven te dromen, maar weten ook hoe we die dromen kunnen vertalen naar praktische, moderne en flexibele gebouwen waarin mensen kunnen wonen, werken en leven.

    BNA erkend bureau | partner van Basis ILS | partner van PIMBIM
    Blijf op de hoogte

    Volg /TOBAarchitecten

                 

    Toba architecten

    Marktstraat 7

    2411 BE Bodegraven

    tel              0172 631 750

    email          info@toba.nl

    whatsapp    stuur een bericht

     

     

     

    © 1998-2026 Toba architecten
    colofon - disclaimer privacy voorwaarden cookiebeleid sitemap zoeken
    We gebruiken cookies op onze website om u de meest relevante ervaring te bieden door uw voorkeuren en herhaalde bezoeken te onthouden. Door op "Alles accepteren" te klikken, stemt u in met het gebruik van ALLE cookies. U kunt echter "Cookie-instellingen" bezoeken om een gecontroleerde toestemming te geven.
    Cookie instellingenAlles accepteren
    Manage consent

    Privacy Overview

    This website uses cookies to improve your experience while you navigate through the website. Out of these, the cookies that are categorized as necessary are stored on your browser as they are essential for the working of basic functionalities of the website. We also use third-party cookies that help us analyze and understand how you use this website. These cookies will be stored in your browser only with your consent. You also have the option to opt-out of these cookies. But opting out of some of these cookies may affect your browsing experience.
    Necessary
    Always Enabled
    Necessary cookies are absolutely essential for the website to function properly. These cookies ensure basic functionalities and security features of the website, anonymously.
    CookieDurationDescription
    cookielawinfo-checkbox-analytics11 monthsThis cookie is set by GDPR Cookie Consent plugin. The cookie is used to store the user consent for the cookies in the category "Analytics".
    cookielawinfo-checkbox-functional11 monthsThe cookie is set by GDPR cookie consent to record the user consent for the cookies in the category "Functional".
    cookielawinfo-checkbox-necessary11 monthsThis cookie is set by GDPR Cookie Consent plugin. The cookies is used to store the user consent for the cookies in the category "Necessary".
    cookielawinfo-checkbox-others11 monthsThis cookie is set by GDPR Cookie Consent plugin. The cookie is used to store the user consent for the cookies in the category "Other.
    cookielawinfo-checkbox-performance11 monthsThis cookie is set by GDPR Cookie Consent plugin. The cookie is used to store the user consent for the cookies in the category "Performance".
    viewed_cookie_policy11 monthsThe cookie is set by the GDPR Cookie Consent plugin and is used to store whether or not user has consented to the use of cookies. It does not store any personal data.
    Functional
    Functional cookies help to perform certain functionalities like sharing the content of the website on social media platforms, collect feedbacks, and other third-party features.
    Performance
    Performance cookies are used to understand and analyze the key performance indexes of the website which helps in delivering a better user experience for the visitors.
    Analytics
    Analytical cookies are used to understand how visitors interact with the website. These cookies help provide information on metrics the number of visitors, bounce rate, traffic source, etc.
    Advertisement
    Advertisement cookies are used to provide visitors with relevant ads and marketing campaigns. These cookies track visitors across websites and collect information to provide customized ads.
    Others
    Other uncategorized cookies are those that are being analyzed and have not been classified into a category as yet.
    SAVE & ACCEPT